|
-
POSTING RULES

-
Donate yearly (please).
-
Advertise in here!
-
Today's Posts
|
Insert Pics
|

12-23-2014, 07:22 AM
|
 |
|
|
Join Date: Sep 2010
Location: Saint-Jorioz, France.
Posts: 199
|
|
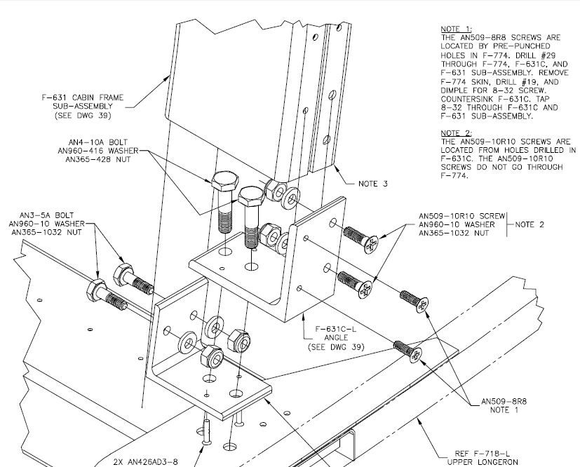
Edge distance issue
Hello everyone,
Yesterday I installed the rollbar on my RV-7. I then dismanteled it and saw this:
Obviously there is an edge distance issue here with the hole on the F631A channel.
These are the holes through which the AN 509-10R10 screws are going in (see pic below). The edge distance inside is good as there is another strip of aluminum F631B-L. The The F631A aft channel where the mistake is located is sandwiched between two pieces.
Is that a problem??
Thanks and Merry Christmas to all.
Alain.

__________________
Location: France
RV7 (F-PRVZ), Tip Up, Aerosport IO-375, Dynon Skyview, VP-X, Day VFR.
Flying since June 2017.
|

12-23-2014, 05:35 PM
|
 |
|
|
Join Date: Jan 2006
Location: South
Posts: 526
|
|
Keep building....it is a non issue.
__________________
___________
Terry
RV7
XP IO360
|

12-23-2014, 07:29 PM
|
|
|
|
Join Date: Dec 2005
Location: Oliver, B.C. Canada (Okanagan valley)
Posts: 786
|
|
That part is only critical untill you really need it. I'd shoot Vans an email with a few more pics just for peace of mind, (because I wouldn't be comfortable.) See what they say.
Regards
__________________
Lorne
RV 7a tip-up
Pre-cover MD-RA Inspected.
Canopy completed. Bonded with Sika-Flex.
Up on her mains, Firewall Fwd and wiring on going.
Last edited by lorne green : 01-02-2015 at 05:13 PM.
Reason: clarification
|

12-27-2014, 01:44 AM
|
 |
|
|
Join Date: Jul 2009
Location: England
Posts: 470
|
|
I would not worry to much about this - 'When you need it' ... as I see it ... is when you flip over (hopefully never) ... and even so ... the assembly is not going to go anywhere as it is being pushed down into the bracket.
For ultimate peace of mind ... ask Vans and let us know what they have to say ... Good luck with the rest of the build ..
__________________
Jan
Slooow RV6, no hole, builder in UK
Paid up for 2015 ...
|

12-27-2014, 03:07 AM
|
 |
|
|
Join Date: Sep 2010
Location: Saint-Jorioz, France.
Posts: 199
|
|
Thanks
Thanks for the replies.
I've sent an email to Vans a couple of days ago, still waiting for a reply. I'm not expecting anything before January anyway, the guys at the mothership need a break for the festive season as well...
I will post the reply here when I get it.
Alain.
__________________
Location: France
RV7 (F-PRVZ), Tip Up, Aerosport IO-375, Dynon Skyview, VP-X, Day VFR.
Flying since June 2017.
|

12-27-2014, 04:33 AM
|
 |
|
|
Join Date: Sep 2010
Location: Galveston, TX
Posts: 118
|
|
just did this
Just did the same thing a few days ago. This is the photo of my proposed fix to send to Vans. Will wait to see their response to you.
Found a piece of scrap aluminum the same thickness as the roll bar, and filed it to fit within the channel. After drilling for 3 rivets, used a round file on the scrap piece to open the bolt holes, deburred, then riveted. I also placed 1 rivet between the bolt holes because the outer section was trying to lift away from the thinner material.

__________________
David Morrow
7A QB ~50% complete . . .
N3237A Reserved
|

12-27-2014, 08:49 AM
|
|
|
|
Join Date: Feb 2006
Location: Trenton, SC
Posts: 117
|
|
Quote:
Originally Posted by High_Flyer
Thanks for the replies.
I've sent an email to Vans a couple of days ago, still waiting for a reply. I'm not expecting anything before January anyway, the guys at the mothership need a break for the festive season as well...
I will post the reply here when I get it.
Alain.
|
Van's normal response is that they do not approve of any changes including "screw ups" that do not meet the intent of the original design. It is up to the builder or A&P/IA to determined if the condition is safe. Just went through a similar scenario with a friends RV-9A where the fuel tank attach screw holes were dimpled without first drilling to size. All of the holes have slight stress cracks from stretching the metal.
|

01-02-2015, 12:58 PM
|
 |
|
|
Join Date: Sep 2010
Location: Saint-Jorioz, France.
Posts: 199
|
|
Reply from VANS, not good...
Here is the reply from VANS regarding the mistake I made on my rollbar:
" The final answer on this is the role bar chanels should be replaced so these holes will have some edge distance with the chanels.
Sterling"
So I will order some new parts and re-do this bit
Alain.
__________________
Location: France
RV7 (F-PRVZ), Tip Up, Aerosport IO-375, Dynon Skyview, VP-X, Day VFR.
Flying since June 2017.
|

01-02-2015, 01:38 PM
|
|
|
|
Join Date: Dec 2005
Location: Oliver, B.C. Canada (Okanagan valley)
Posts: 786
|
|
Quote:
Originally Posted by JanRV6UK
I would not worry to much about this - 'When you need it' ... as I see it ... is when you flip over (hopefully never) ... and even so ... the assembly is not going to go anywhere as it is being pushed down into the bracket. "snip"
|
"the assembly is not going to go anywhere as it is being pushed down into the bracket" is generaly true if there is no further forward travel after a flip.
But if there is continuing forward momentum after the flip the roll bar may fold forward. Such an accident happened to a local pilot who crashed his RV9 in Penticton, British Columbia, Canada (due to fuel flow issues) a number of years ago. The forward momentum of his flipped RV9 caused the roll bar on his tipper to collapse forward causing unstated trauma to his neck and head. The poor chap didn't survive. Really tragic.
__________________
Lorne
RV 7a tip-up
Pre-cover MD-RA Inspected.
Canopy completed. Bonded with Sika-Flex.
Up on her mains, Firewall Fwd and wiring on going.
Last edited by lorne green : 01-02-2015 at 05:16 PM.
Reason: clarity
|

01-08-2015, 09:08 PM
|
 |
|
|
Join Date: Sep 2010
Location: Galveston, TX
Posts: 118
|
|
roll bar
Scott A., not sure if I properly responded to your PM.
I was holding my email to Vans until High Flyer got a response, but somehow missed this thread when Van's response was posted.
While it doesn't look good for me, yes, Scott, I will send in to Vans anyway. What a pain, not just to re-build the roll bar, but likely to re-fabricate the match-drilled angles which support it.
__________________
David Morrow
7A QB ~50% complete . . .
N3237A Reserved
|
| Thread Tools |
Search this Thread |
|
|
|
| Display Modes |
Linear Mode
|
Posting Rules
|
You may not post new threads
You may not post replies
You may not post attachments
You may not edit your posts
HTML code is Off
|
|
|
All times are GMT -6. The time now is 01:45 AM.
|